524 N. Mullan Rd. - Office

524 N. Mullan Rd. Spokane Valley, WA

$845,000 | 7,800 SFT | 0.32 AC | Available Now

 

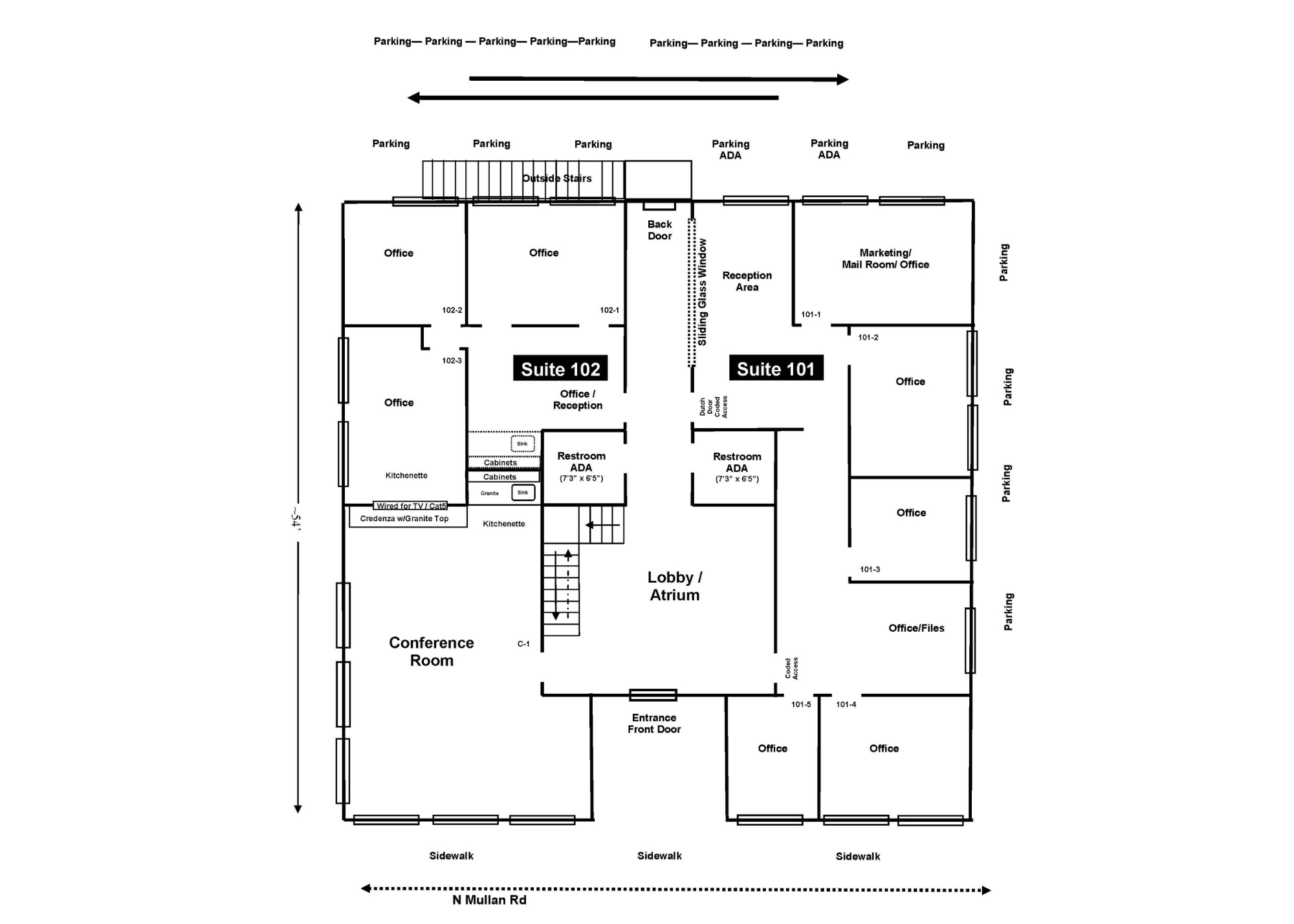
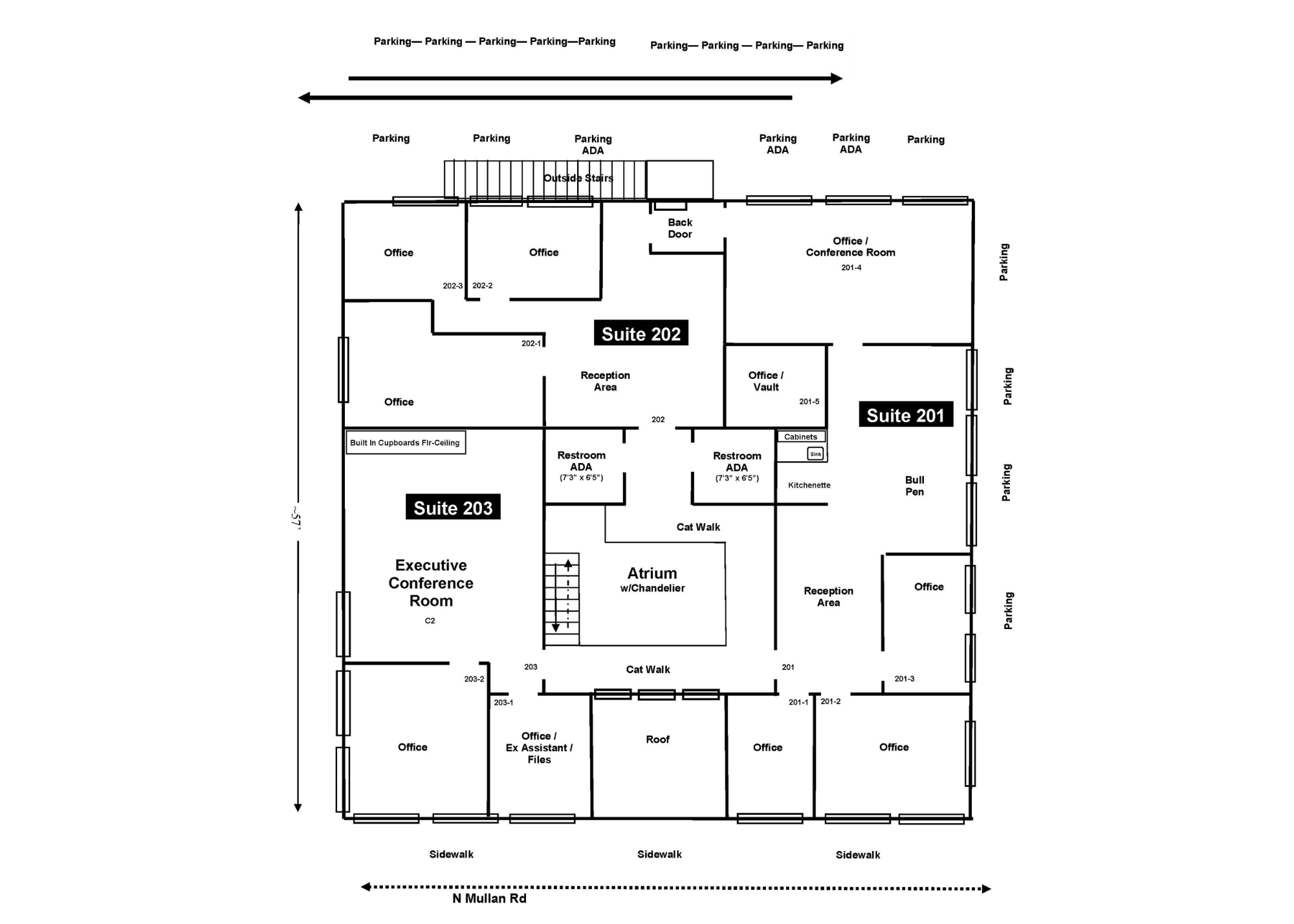
This property offers a 7,800 SFT multi-tenant office/retail building ideally positioned along one of Spokane Valley’s primary north-south arterials with excellent visibility and convenient access to I-90 via the Argonne and Sullivan interchanges. Offered at $845,000 ($108.33/SFT), the property sits on 0.32 acres and features six available suites. The building includes 3,100 SFT on the lower level, 3,200 SFT on the upper level, and 1,500 SFT basement space, with 16 on-site parking stalls. Zoned CMU and constructed with wood frame in 1978, this three-story building benefits from strong surrounding residential density in established neighborhoods such as Mirabeau and Opportunity, along with proximity to major retailers, national restaurants, and service providers. This is an excellent opportunity for investors seeking value-add potential in one of Spokane Valley’s most active commercial corridors.

 
 
Previous
Previous

1300-1312 N. Mullan Rd. - Retail Shopping Strip Center

Next
Next

8716 N. Greene Ln. - Industrial Land